

九月,上海,秋风入怀,三顿半在安福路开了一家店。这是一场自然发生的,三顿半与裸筑更新建筑事务所的合作结果。带着一种对减法、规律、真实的相通解读,在这一处街道,将空间让给户外,让给观者,呈现着空间真实的底色。

今日开启试营业的into_the force原力飞行的入口是一个可以被完全升起的铁栅栏。设计师希望它将沿马路牙子的50平米还给大众。甚至结束一天的营业之后关闭,路人也能透过格栅看到室内,甚至感受到”气体“的流通。


into_the force真正的门为一扇玻璃折叠门,两道门之间的空间被真正让给了户外。
对三顿半来说,开店虽然是件新鲜事,走向却是自然而生的。三顿半于2015年成立,精品速溶咖啡做至第3年,以成熟优质的口味与坚持可持续的“返航计划”,与当下的年轻人们走得很近,故事也总在城中最讨喜的集合店里发生。年轻人默认这些五颜六色的小罐子与宇宙的一场关联:在忙碌的办公室,拆开0-7编号的罐口,倒出咖啡,与水或牛奶融合,饮毕复而将罐身留存,等待下次返航——仿佛将碎片交还宇宙的仪式感,令这场可持续的进程如星球轨迹般恒定可见。
有可靠口味打底,还能在仪式感的同时保有真实的可持续举措,是三顿半的细腻诚意,也无疑是打动受众的。这片宇宙的势头有目共睹。应运而生的新鲜事,当然也有更多。
今年,站在品牌身后的创始人吴骏,知道是时候了。“三顿半需要一个概念店。”他说。






into_the force被混凝土、夯土砖、木和蜂窝纸板最自然的颜色填充,保留了空间与材质的底色。建筑师柏振琦认为空间底色是整个设计的平面和气质,其围绕减法,规律和真实展开。


在媒体及广告行业浸润多年的吴骏,深知真实的接触与体验,对于连接品牌及受众的重要意义。“线上始终隔着屏幕。特别是当电商化的品牌印记越来越强的时候,它就越发需要一个实体的空间,拥有属于自己的独立界面,连接用户,给人感知与触碰的介质。”
但这并不是突然发生的决策。长久以来,与其说三顿半是在做品牌,不妨说,吴骏和团队致力的是打造一个完整的体系。小罐子的风味与设计、返航计划的全过程体验、平台和渠道带给用户的感受......仍然用回前文比喻,三顿半的架构好比独立宇宙,界面、服务与产品都需要互文成为一体。只看重产品,或只看重形式,则皆为虚言,难成星群。





into_theforce原力飞行概念店
话说回来,开咖啡馆也不算完全没有经验——19年,三顿半在长沙开了一家Demo咖啡店,就是我们印象中,真正意义上售卖杯装饮品的标准咖啡馆,但对这件事,三顿半只是默默地做。在吴骏和另一位创始人王炼的眼里,这间咖啡馆恰如其名,是个“测试版”。
“之所以是Demo,是因为一切都还在探索,无论是咖啡还是空间。它当然可能不成熟,但我们需要它去接触一些生产商业上落地的东西:SOP的流程,对咖啡面包基础品类的认知,对线下服务的感悟......就让它慢慢地去找那些东西。当我们逐渐理解做咖啡馆有多难,就会知道敬畏这件事,太重了。”吴骏笑着说。


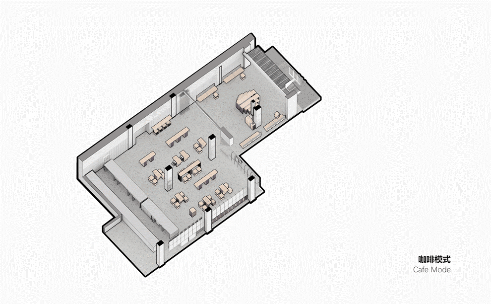
into_the force将咖啡吧台放置在了空间最远处,将开阔灵活的空间留给大众。
带有谦逊和敬畏行事,是吴骏和三顿半团队在冒险之外的务实特质,也的确总能为他们带来稳重收获。此番过往如今显然已成基石序章。序章之后,就亟待进化的发生。安福路的这一间,终于将成为他们想拿出来,细细展开,讲一些故事,做些好玩的事儿的概念店空间。是的,我们更愿意在此称其“空间”,因为它绝非一家普普通通的“咖啡店”。缘由我们等下再讲。


安福路,全上海最擅长提供时髦场景的小马路之一。盛名之下,选择在这里落地的品牌总面对着更大的压力:既要保证产品的优质、店面好玩内容的翻新,还得经得住年轻人的长期审视——且这些审视本身的质量确实高过别处——并在真正意义上,与这群热爱新鲜玩法的年轻人进行连接......是件又难又辛苦的事。
但压力,也从来不是击退三顿半的最佳选项——吴骏与团队择好店面,接着就准备寻找一位能真正实现他们想法的合作方,让一切落地。



into_the force空间内部有着极强的灵活度,而室内家具与装置也可移动变形,从而塑造出了三种模式:咖啡模式、收纳模式、展陈模式。裸筑更新建筑事务所不仅设计了室内空间,也设计了一整套桌椅、展陈体系。
可能是运气与缘分使然,只尝试两次,吴骏和王炼就见到了裸筑更新建筑事务所的创始人柏振琦。这位年轻的90后建筑设计师,与三顿半第一次见面就聊了整整三个半钟头。
他们马上明白,自己与对方处在同一维度,频率相近,是一方提出一个概念和理论,无需过多解释就能收获另一方理解的状态。恰到好处。






into_theforce空间内的设计细节
“我们还在讲想做什么事情的时候,我就感觉柏工眼睛一下子亮了。”吴骏笑着说。“很多人是这样,他先听到你的结果,再决定对你这件事的兴趣;但很少人是在你讲了还不到一半的时候,他就知道这件事情可行,想做,喜欢。”
王炼则笃定地说,不必再找了,就是他。


柏振琦先出了版方案。而裸筑合伙人郁颖在看完初版方案的当晚,立刻给他打电话。“你确定吗?这样设计,你等于想改掉客户整个的包装体系?”柏振琦面不改色:“对,试试。”
郁颖的担忧来自对商业的常规认知。但就是这份没有遵照常规行事的方案,吴骏和团队仔细看过之后,痛快地说:“好,来吧!”



into_the force有着一套可变形的家具系统,咖啡桌与展桌都可以改变形式与桌面大小。用”模数”这个建筑学逻辑,使物理空间产生更多的空间变化的可能性,从而满足”规律“的功能需要。
“我是希望自己做的每个项目,都能稳当立住的人。”柏振琦坦言。“这确实是一个很具有实验性的空间,而正好他们愿意跟我一起来去实验这些东西......我就觉得很满足。可以走出那一步,接着更好地被优化,就很有趣。”
into_the force原力飞行的空间框架,就这样定了下来。“材料尺规,材料是砖和石,尺规是秩序。”柏振琦以原力为一个起点,为空间规划出自然属性的脉络,用他的话说,这里选择的材料,都带有一些“原始的野生”。他的思路与吴骏在某种程度上是彼此呼应的:也在致力于创作体系化结构,从空间底色入手,搭配安福路的社区特质进行设计。



咖啡凳的长高有三种调节模式,从而产生三种使用方式。350mm高,做展台;400mm高,做椅子;450mm高,成为小吧台。


“节点”,是整个空间最重要的关键词。它来源于三顿半提出的理念:link and loop(连接和循环)。
整个空间,乍一看趋向使用较为平顺的中性色:墙体原始的尘色、水磨石地面的深灰、填实混凝土墙体的夯土砖色、芬兰板材质桌凳的原木色、靠近吧台部分半哑光的浅灰金属光泽......但注意,在这些较为沉寂的颜色之上,有数粒亮绿色、抢占注意力的几何体,不同的形状有着不同的编号,引人注目。






空间中有很多绿色节点的细节,是裸筑团队做的螺丝套件。
这些绿色的几何体,是裸筑团队做的螺丝套件。螺丝,即“节点”,意味着连接,也成为了柏振琦解读三顿半的表达式:无论物或人,连接关系皆由节点而为。
节点,成为了设计逻辑的闭环关键帧。“连接和循环,节点和可持续,这是两个不同层面对同一种价值观的输出。”柏振琦在空间的解说里这样写道。



灰空间的墙面两侧配以芬兰板翻折座椅,给路过的行人提供短暂休息的空间。
空间的正门并不直接开在沿街最外侧。柏振琦为这里设计了灰空间,划出将近一半的面积作为外摆区,墙面两侧配以芬兰板翻折座椅,提供“即停即走”的短暂休憩。整间店内都专门设计了灵活的移动折叠桌椅,可以随意拉动摆放,非营业时间可在墙边以磁力收纳。散开做展台,拼合做张DJ台甚至乒乓球桌,都是这个空间所能允许的数种自由。
咖啡吧台反而设置在了空间的最远处。设计前柏振琦特意问过吴骏,是否担心销售?吴骏说完全不。“如果可能,我们本来连门都不想要呢。我们希望将建筑和空间,融入街道,还给街区,然后交朋友。”意味着,假使你并没有打算喝一杯,而只是在门口坐下歇脚放空,也仍然会受到大大方方的热烈欢迎。


裸筑更新建筑设计事务所长期合作的灯光设计团队ELA寻光照明设计了”懂指挥的角标”,帮助移动的桌椅定位使用。通过光与人的互动行为确定座椅的位置,磁性开关是达成这一目的的关键。当桌椅接近角标时,“咔哒”角标的灯光亮起,达成图形与人、人与空间的互动。


原力飞行的前身是安福路上一家年代已久的银行,做内部拆除时着实费了一番心力。柏振琦带着团队调整原空间,商讨后决心顺势而为,以手工灌注的夯土砖,规训混凝土前身的不规则墙面,同时保留部分原始面貌的粗粝感;再经2000吨液压考验的泰来石大板实用耐污,以大尺度板材分封,形成管线体系。而其中最值得一说的,可能是蜂窝纸板材质的大量使用。




裸筑更新建筑事务所对于夯土砖的实践


上图:泰来石嵌不锈钢格栅地面
下图:粗粝的混凝土质感
严格来说它们并不为硬装服务。这些坚固的蜂窝纸板,以CNC侧口整切的工艺,配以三顿半特意为安福路店定制的8号小罐子,造就了天然建筑感肌理的纸砖。在两面墙体上铺设,既是可供售卖的商业产品,也是对裸露夯土砖秩序性的另一种表达方式。顶层还设有空心小三角,搭配绿色不锈钢螺丝节点,想喝咖啡?先拧开螺丝......实物的趣味,妙不可言。



蜂窝纸板为包装的8号小罐子阵列排布的展陈系统,与夯土砖砌筑的形式形成对比呼应。
“这个纸,一很轻,二很环保。轻而环保,不会污染地球,不会作恶’......这就是他们想要的东西,我很确定。”柏振琦说。
的确如此。三顿半的工作人员说:“我们设想,开店后每日售卖,人们从墙上取下纸砖购买,我们不会及时补货。让墙体自然出现深浅层次,也是设计本身想要达成的视觉效果之一。”看到这里我们决定质疑柏振琦的真实身份——毕竟特别会做包装、产品、视觉设计的建筑师,这个前缀可能是去不掉了。

随着人们从取下产品购买,墙面则自然地呈现一种深浅的变化,立面也有了不同的表现形式。


柏振琦身上有一种笃定的魄力。他不给自己设置框架,觉得可以就去做。足够好的想法总是值得应运而生,至于看起来是不是“好像很难实现”——不在他的字典里。“打破”意味着你首先知道实际的边界,但究竟什么才是那个禁锢自己的边界?“选择不去知道,就不存在。”他说。
但在材质的选择上,不论是平滑金属与粗粝墙面,或是蜂窝纸板与真实土砖,尽管造成对比,却并不是故意而为之的处理。柏振琦笃信顺其自然的思考,只是因为“它们本就应该出现在那里”。



为了与空间语言契合,特别定制的8号小罐子,以
蜂窝纸板为包装。
“我希望每个进入这个空间的人,不会有种这个空间被设计过的感觉;但是逛了三四圈下来就会觉得,似乎哪哪都有点——这就是我追求的润物细无声’的设计力量。”柏振琦说。
顺其自然,也是三顿半常持有的答案。吴骏说:“让东西自己生长出来,最有意思。”整个空间也是一场顺其自然的结果。如我们前文所说,三顿半无意让它仅仅成为一家咖啡店,而是在打造一个具有节点属性的概念空间。产品最终将连接到人。它将会非常自然地,成为三顿半与受众,裸筑与观者的联系节点,在街区场景内塑造活泼的社区画面,包容关系与情绪在此的自然流动,成为维系人与人之间连接的重要介质之一。



裸筑更新建筑事务所长期合作的灯光设计团队ELA寻光照明为into_the force设计了三个层次的灯光集成系统并设有控制模块,可以满足空间多元化的使用需求。
在交谈的最后,我们询问起“into_the force原力飞行”这一名字的来源。“原力是我们选择的一个基础单位。”吴骏说。“它是这个世界很基础的一种能量关系,与万事万物紧密联系。”原力在流动,能够飞行出去,连接更广阔的世界。当它再次归来,就又能反哺更持久且变幻的生命力。
说到这里,似乎我们此刻谈论的,又像是个完整的宇宙了。原力为宇宙之因,飞行则是动态的结果与表达方式......无数星球在此流动汇聚。期待这片宇宙在日后的星群璀璨。

into_theforce
原力飞行
☕️
上海 安福路322号2-105
项目名称:into_the force原力飞行概念店
地点:上海市安福路322号2-105
空间设计:裸筑更新建筑设计事务所
业主:三顿半
设计时间:2021.03-2021.06
建造时间:2021.06-2021.09
主持建筑师:柏振琦
事务所项目管理:郁颖
项目建筑师:盛朦萱 薛乐骞
建筑设计团队:伍恩泽,吴叶静,梁潇怡
灯光设计:ELA寻光(降昭龙 刘峰 柳青青)
施工顾问:EMCC结庐(张成华)
施工方:上海结庐装饰设计工程有限公司
泰来石板制作:江苏结庐建材发展有限公司
建筑面积:280平方米
摄影:WenStudio
感谢裸筑更新建筑事务所、三顿半
受访并供图
采访、撰文:Yutong
编辑:hanxi


